一宮市第1多加木

1号地外観

1号地外観2

3号地外観

1号地LDK

1号地和室

協定道路写真

3号地LDK
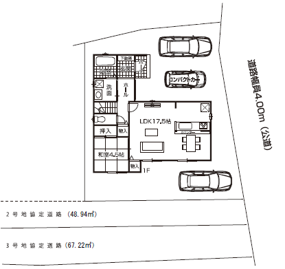
区画図・間取り
3DVR映像
周辺地図
物件概要
- 価格
- 2,690万円
~3,090万円
- 所在地
- 愛知県一宮市多加木3丁目13番13、32、34
- 交通
-
名鉄名古屋 妙興寺駅 徒歩25分 バス7分
バス線「名鉄バス 一宮駅行き」バス停「森本」より徒歩16分
- 建築確認番号
- 第R06確認建築愛建住セ24135号、24137号(令和6年11月21日)
- 設備
- 中部電力、東邦ガス、公営水道、公共下水
- 制限事項
- -
- 備考
- 上記土地面積のほかに、協定地の所有があります。
2号地協定地48.94㎡、3号地協定地67.22㎡
住宅性能評価取得予定
- 取引形態
- 売主
- 情報登録日
- 2025-01-05
- 情報更新日
- 2025-10-16 10:59:16
- 次回更新予定日
-
情報更新日より14日以内
- お問い合わせ先
- ファースト住建株式会社
名古屋西支店 052-528-3825
〒451-0012 愛知県名古屋市西区稲生町4丁目29 マジェール稲生1階
宅地建物取引業 国土交通大臣(5)第6116号 愛知県宅地建物取引業協会会員
- 注意事項
- ※照明器具・カーテンレール等は別途注文となります。
※CATVはお客様負担となります。
※消費税・外構工事費込(当社仕様オープン外構)
※図面と現況が異なる場合は現況優先となります。