ファースト住建

物件検索

HOME物件検索条件検索結果名古屋市第1南区星崎

名古屋市第1南区星崎

価格 3,299万円

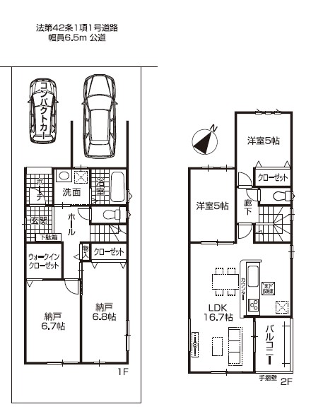
区画図・間取り

3DVR映像

周辺地図


物件概要

価格
3,299万円
所在地
愛知県名古屋市南区星崎1丁目333番1
交通
名鉄名古屋本線 本星崎駅 徒歩14分
バス線「市バス JR笠寺駅行き」バス停「大慶橋」より徒歩4分
建築確認番号
第R07確認建築愛建住セ21314号(令和7年7月14日)
総棟数
1棟
販売棟数
1棟
土地面積
100.85
建物面積
103.08
間取り
2LDK+2納戸
構造
木造2階建
地目
宅地
用途地域
準工業地域
建ぺい率
60%
容積率
200%
私道負担
築年月
2025年10月完成予定
土地権利
所有権
道路
※区画図に記載
設備
中部電力・東邦ガス・公営上水・公共下水
制限事項
-
備考
住宅性能評価取得予定 建物面積:インナーガレージ(7.29㎡)を含みます。
取引形態
売主
情報登録日
2025-09-25
情報更新日
2025-09-27 16:35:29
次回更新予定日
情報更新日より14日以内
お問い合わせ先
ファースト住建株式会社
東海支社3課 0568-86-3144
〒486-0927 愛知県春日井市柏井町3丁目25番 ラ・プリミエール101号
宅地建物取引業 国土交通大臣(5)第6116号 愛知県宅地建物取引業協会会員
注意事項
※照明器具・カーテンレール等は別途注文となります。
※CATVはお客様負担となります。
※消費税・外構工事費込(当社仕様オープン外構)
※図面と現況が異なる場合は現況優先となります。


資料請求フォーム

  • ご入力
  • ご確認
  • 完了

内覧希望   内覧希望日時
物件購入について相談したい
物件についての詳しい資料がほしい
その他

資料請求を行っていただく前にプライバシーポリシー」を必ずお読みください。
定休日(火曜日・水曜日)や夏季休業・年末年始休業などの期間は、返信までにお時間をいただく場合がございます。

check