物件検索

HOME物件検索条件検索結果尾張旭市第1南新町中畑

尾張旭市第1南新町中畑(愛知県尾張旭市の一戸建て・建売・分譲)

価格 3,690万円

区画図・間取り

周辺地図


物件概要

価格
3,690万円
所在地
愛知県尾張旭市南新町中畑1番57
交通
名鉄瀬戸線 尾張旭駅 徒歩31分
バス線「尾張旭市コミュニティバス あさぴー号「印場駅」行き」バス停「南新町中畑」より徒歩1分
名古屋市営地下鉄東山線 藤が丘駅 徒歩39分
建築確認番号
確認サービス第KS125-0420-53939号(令和7年7月18日)
総棟数
1棟
販売棟数
1棟
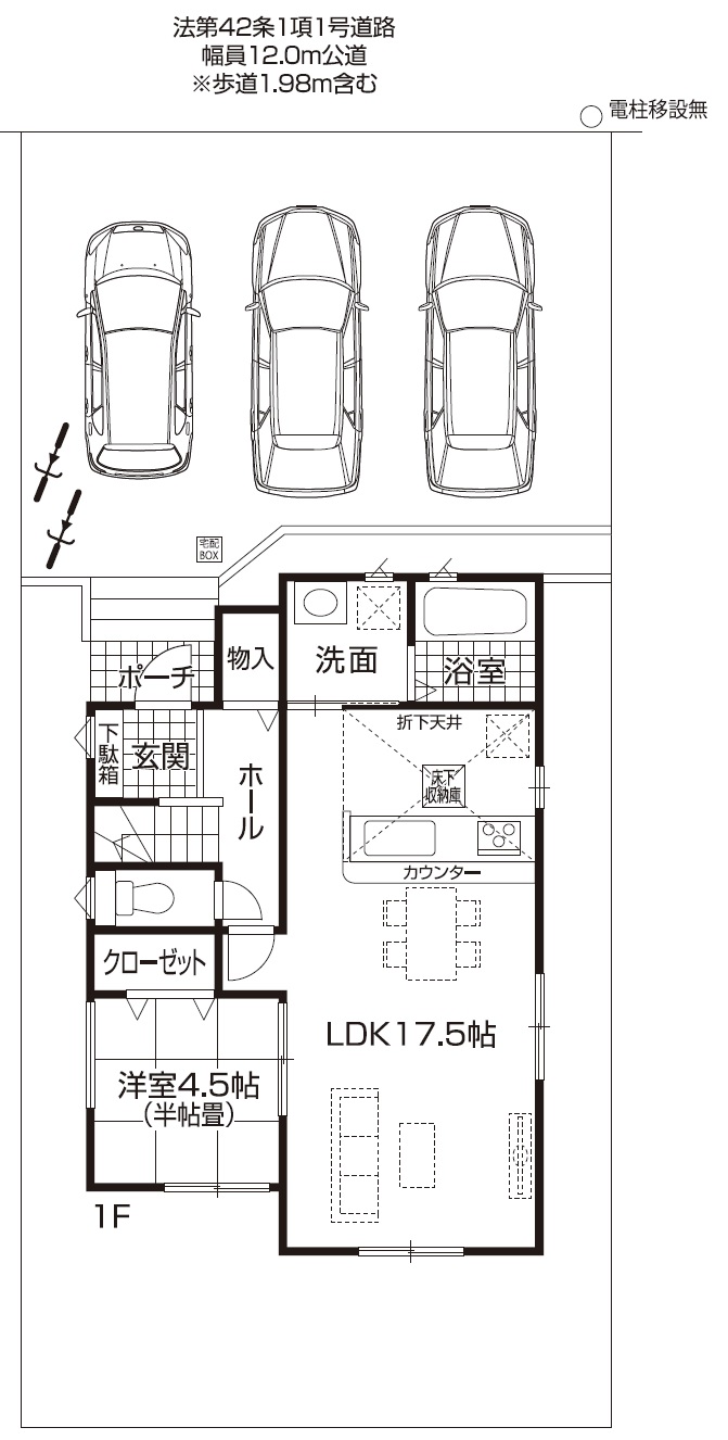
土地面積
148.92
建物面積
99.63
間取り
4LDK
構造
木造2階建
地目
宅地
用途地域
第一種低層住居専用地域
建ぺい率
60%
容積率
100%
私道負担
築年月
2025年11月完成
土地権利
所有権
道路
北道路12.0m※歩道1.98m含む
設備
中部電力、都市ガス、公営上水、公共下水
制限事項
-
備考
宅配BOX機能付き門柱、設計住宅性能評価取得済、建設住宅性能評価取得予定
取引形態
売主
情報登録日
2025-09-20
情報更新日
2026-01-12 12:56:34
次回更新予定日
情報更新日より14日以内
お問い合わせ先
ファースト住建株式会社
名古屋支店 052-709-5755
〒465-0093 名古屋市名東区一社2丁目106番地 ピア葵1階
宅地建物取引業 国土交通大臣(6)第6116号 愛知県宅地建物取引業協会会員
注意事項
※照明器具・カーテンレール等は別途注文となります。
※CATVはお客様負担となります。
※消費税・外構工事費込(当社仕様オープン外構)
※図面と現況が異なる場合は現況優先となります。


資料請求フォーム

  • ご入力
  • ご確認
  • 完了

内覧希望   内覧希望日時
物件購入について相談したい
物件についての詳しい資料がほしい
その他

資料請求を行っていただく前にプライバシーポリシー」を必ずお読みください。
定休日(火曜日・水曜日)や夏季休業・年末年始休業などの期間は、返信までにお時間をいただく場合がございます。

check