一宮市第1伝法寺(愛知県一宮市の一戸建て・建売・分譲)

2号地外観
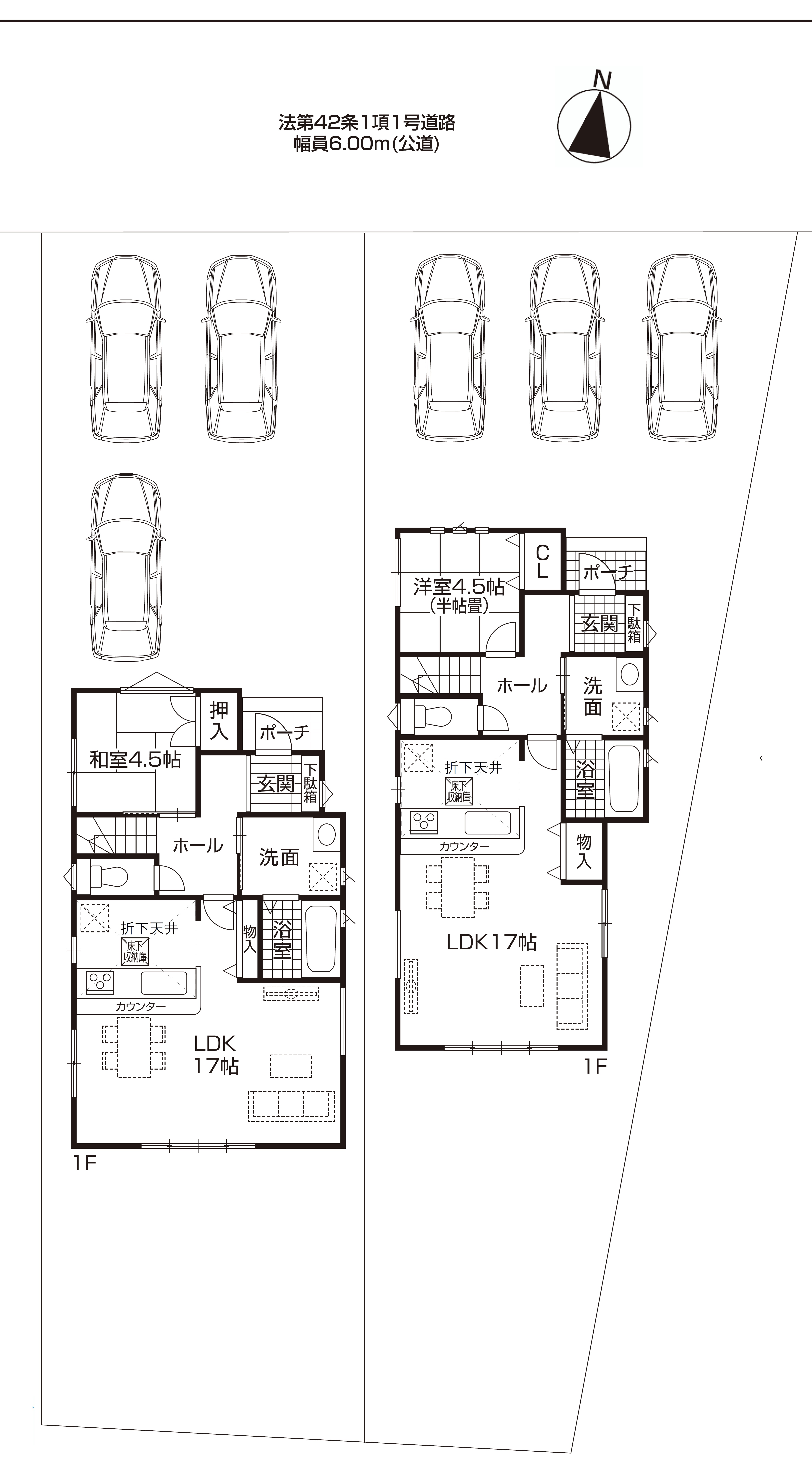
区画図・間取り
周辺地図
物件概要
- 価格
- 3,230万円
- 所在地
- 愛知県一宮市伝法寺7丁目14番2、14番9
- 交通
-
JR東海道本線 稲沢駅 徒歩32分
- 建築確認番号
- 確認サービス第KS125-04520-55957号(令和7年9月17日)
- 設備
- 中部電力、都市ガス、公営上水、公共下水
- 制限事項
- -
- 備考
- 設計住宅性能評価書取得済み 建設住宅性能評価書取得済み、宅配ボックス付き機能性門柱
- 取引形態
- 売主
- 情報登録日
- 2025-09-20
- 情報更新日
- 2026-04-09 10:47:16
- 次回更新予定日
-
情報更新日より14日以内
- お問い合わせ先
- ファースト住建株式会社
名古屋支店 052-709-5755
〒465-0093 名古屋市名東区一社2丁目106番地 ピア葵1階
宅地建物取引業 国土交通大臣(6)第6116号 愛知県宅地建物取引業協会会員
- 注意事項
- ※照明器具・カーテンレール等は別途注文となります。
※CATVはお客様負担となります。
※消費税・外構工事費込(当社仕様オープン外構)
※図面と現況が異なる場合は現況優先となります。