ファースト住建

物件検索

HOME物件検索条件検索結果名古屋市第4港区明正

名古屋市第4港区明正

価格 3,190万円

区画図・間取り

3DVR映像

周辺地図


物件概要

価格
3,190万円
所在地
愛知県名古屋市港区明正1丁目124番
交通
名古屋臨海高速鉄道あおなみ線 中島駅 徒歩30分 バス10分
バス線「名古屋市営バス 市営地下鉄 高畑駅行き」バス停「明正」より徒歩1分
建築確認番号
確認サービス第KS125-0420-50372号~50374号(令和7年5月12日)
総棟数
3棟
販売棟数
3棟
土地面積
105.07㎡ ~111.64
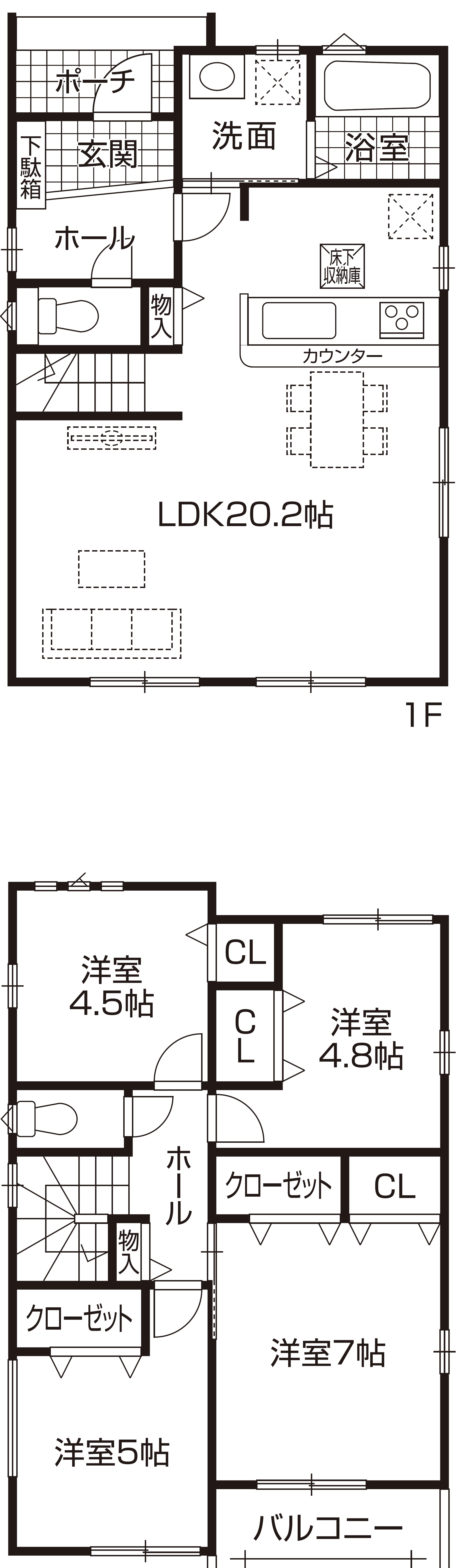
建物面積
96.39㎡ ~107.73
間取り
4LDK
構造
木造2階建
地目
宅地
用途地域
第一種住居地域
建ぺい率
60%
容積率
200%
私道負担
築年月
2025年9月完成
土地権利
所有権
道路
※区画図に記載
設備
中部電力、都市ガス、公営上水、公共下水
制限事項
-
備考
※3号地 建物面積には車庫面積約6.0㎡含む 設計住宅性能評価書取得済み 建設住宅性能評価書取得予定
取引形態
売主
情報登録日
2025-09-20
情報更新日
2025-09-21 17:49:48
次回更新予定日
情報更新日より14日以内
お問い合わせ先
ファースト住建株式会社
名古屋支店 052-709-5755
〒465-0093 名古屋市名東区一社2丁目106番地 ピア葵1階
宅地建物取引業 国土交通大臣(5)第6116号 愛知県宅地建物取引業協会会員
注意事項
※照明器具・カーテンレール等は別途注文となります。
※CATVはお客様負担となります。
※消費税・外構工事費込(当社仕様オープン外構)
※図面と現況が異なる場合は現況優先となります。


資料請求フォーム

  • ご入力
  • ご確認
  • 完了

内覧希望   内覧希望日時
物件購入について相談したい
物件についての詳しい資料がほしい
その他

資料請求を行っていただく前にプライバシーポリシー」を必ずお読みください。
定休日(火曜日・水曜日)や夏季休業・年末年始休業などの期間は、返信までにお時間をいただく場合がございます。

check