名古屋市第4緑区鳴丘

1号地外観

2号地外観
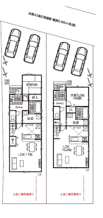
区画図・間取り
3DVR映像
周辺地図
物件概要
- 価格
- 3,899万円
~3,999万円
- 所在地
- 愛知県名古屋市緑区鳴丘1丁目2123番2、2123番7
- 交通
-
市営地下鉄桜通線 徳重駅 徒歩13分
- 建築確認番号
- 確認サービス第KS125-0420-52394号(令和7年6月6日)他
- 道路
- 前面道路私道について、名古屋市への寄付採納済み。名古屋市所有の私道です。
- 設備
- 中部電力、都市ガス、公営上水、公共下水
- 制限事項
- -
- 備考
- 間取り
1号地:3LDK+納戸
2号地:4LDK
宅配ボックス機能付き門柱、住宅性能評価書取得予定
建築確認番号
1号地:確認サービス第KS125-0420-52176号(令和7年6月5日)
2号地:確認サービス第KS125-0420-52394号(令和7年6月6日)
- 取引形態
- 売主
- 情報登録日
- 2025-09-20
- 情報更新日
- 2025-09-21 17:42:11
- 次回更新予定日
-
情報更新日より14日以内
- お問い合わせ先
- ファースト住建株式会社
名古屋支店 052-709-5755
〒465-0093 名古屋市名東区一社2丁目106番地 ピア葵1階
宅地建物取引業 国土交通大臣(5)第6116号 愛知県宅地建物取引業協会会員
- 注意事項
- ※照明器具・カーテンレール等は別途注文となります。
※CATVはお客様負担となります。
※消費税・外構工事費込(当社仕様オープン外構)
※図面と現況が異なる場合は現況優先となります。