物件検索

HOME物件検索条件検索結果豊田市第1東新町

豊田市第1東新町(愛知県豊田市の一戸建て・建売・分譲)

価格 3,690万円

区画図・間取り

3DVR映像

周辺地図


物件概要

価格
3,690万円
所在地
愛知県豊田市東新町3丁目48番12
交通
名鉄三河線 土橋駅 徒歩42分
バス線「名鉄バス 豊田市駅行」バス停「豊田東新町」より徒歩3分
建築確認番号
第R07確認建築愛建住セ23166号(令和7年10月29日)
総棟数
1棟
販売棟数
1棟
土地面積
132.01
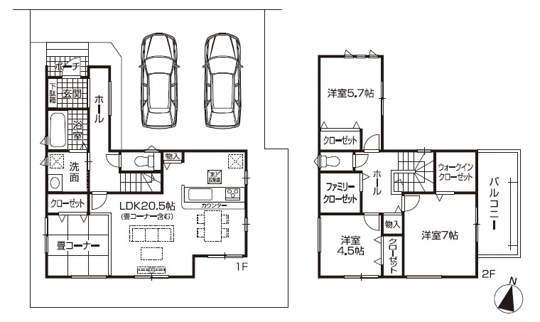
建物面積
100.45
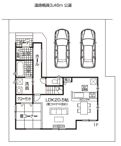
間取り
3LDK
構造
木造2階建
地目
宅地
用途地域
第一種中高層住居専用地域
建ぺい率
60%
容積率
150%
私道負担
築年月
2026年2月完成
土地権利
所有権
道路
※区画図に記載
設備
中部電力・東邦ガス・公営水道・公共下水
制限事項
-
備考
住宅性能評価取得 一階に畳コーナー有
取引形態
売主
情報登録日
2025-11-22
情報更新日
2026-04-13 16:16:30
次回更新予定日
情報更新日より14日以内
お問い合わせ先
ファースト住建株式会社
東海支社3課 0568-86-3144
〒486-0927 愛知県春日井市柏井町3丁目25番 ラ・プリミエール101号
宅地建物取引業 国土交通大臣(6)第6116号 愛知県宅地建物取引業協会会員
注意事項
※照明器具・カーテンレール等は別途注文となります。
※CATVはお客様負担となります。
※消費税・外構工事費込(当社仕様オープン外構)
※図面と現況が異なる場合は現況優先となります。


資料請求フォーム

  • ご入力
  • ご確認
  • 完了

内覧希望   内覧希望日時
物件購入について相談したい
物件についての詳しい資料がほしい
その他

資料請求を行っていただく前にプライバシーポリシー」を必ずお読みください。
定休日(火曜日・水曜日)や夏季休業・年末年始休業などの期間は、返信までにお時間をいただく場合がございます。

check