春日井市第6坂下町(愛知県春日井市の一戸建て・建売・分譲)

洋室
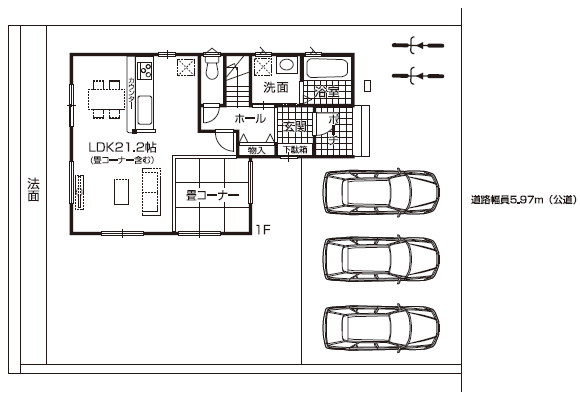
区画図・間取り
周辺地図
物件概要
- 価格
- 3,190万円
- 所在地
- 愛知県春日井市坂下町五丁目1215番705
- 交通
-
JR中央線 高蔵寺駅 徒歩52分 バス21分
バス線「名鉄バス 高蔵寺駅北口行き」バス停「坂下町五丁目」より徒歩5分
- 建築確認番号
- 第R07確認建築愛建住セ22715号(令和7年9月30日)
- 設備
- 中部電力、東邦ガス、公営水道、集中浄化槽
- 制限事項
- -
- 備考
- 間取り:3LDK+タタミコーナー
土地面積には法地面積15.30㎡を含みます。
設計住宅性能評価書取得済み
建設住宅性能評価書取得予定
駐車3台可!
- 取引形態
- 売主
- 情報登録日
- 2026-01-12
- 情報更新日
- 2026-01-15 14:44:02
- 次回更新予定日
-
情報更新日より14日以内
- お問い合わせ先
- ファースト住建株式会社
名古屋西支店 052-528-3825
〒451-0012 愛知県名古屋市西区稲生町4丁目29 マジェール稲生1階
宅地建物取引業 国土交通大臣(5)第6116号 愛知県宅地建物取引業協会会員
- 注意事項
- ※照明器具・カーテンレール等は別途注文となります。
※CATVはお客様負担となります。
※消費税・外構工事費込(当社仕様オープン外構)
※図面と現況が異なる場合は現況優先となります。