物件検索

HOME物件検索条件検索結果海部郡第5蟹江町学戸

海部郡第5蟹江町学戸(愛知県海部郡蟹江町の一戸建て・建売・分譲)

価格 3,390万円

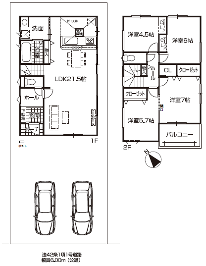
区画図・間取り

周辺地図


物件概要

価格
3,390万円
所在地
愛知県海部郡蟹江町学戸1丁目130番
交通
JR関西本線 蟹江駅 徒歩21分
近鉄名古屋本線 近鉄蟹江駅 徒歩22分 バス8分
バス線「お散歩バス「近鉄蟹江駅」行き」バス停「今才勝公園東」より徒歩5分
建築確認番号
確認サービス第KS125-0420-58100号(令和7年10月22日)
総棟数
1棟
販売棟数
1棟
土地面積
131.84
建物面積
102.06
間取り
4LDK
構造
木造2階建
地目
宅地
用途地域
第一種中高層住居専用地域
建ぺい率
60%
容積率
150%
私道負担
築年月
2026年1月完成
土地権利
所有権
道路
※区画図に記載
設備
中部電力、集中プロパン、公営水道、公共下水
制限事項
-
備考
設計・建設性能評価書取得
取引形態
売主
情報登録日
2026-04-06
情報更新日
2026-04-09 11:14:41
次回更新予定日
情報更新日より14日以内
お問い合わせ先
ファースト住建株式会社
名古屋支店 052-709-5755
〒465-0093 名古屋市名東区一社2丁目106番地 ピア葵1階
宅地建物取引業 国土交通大臣(6)第6116号 愛知県宅地建物取引業協会会員
注意事項
※照明器具・カーテンレール等は別途注文となります。
※CATVはお客様負担となります。
※消費税・外構工事費込(当社仕様オープン外構)
※図面と現況が異なる場合は現況優先となります。


資料請求フォーム

  • ご入力
  • ご確認
  • 完了

内覧希望   内覧希望日時
物件購入について相談したい
物件についての詳しい資料がほしい
その他

資料請求を行っていただく前にプライバシーポリシー」を必ずお読みください。
定休日(火曜日・水曜日)や夏季休業・年末年始休業などの期間は、返信までにお時間をいただく場合がございます。

check