物件検索

HOME物件検索条件検索結果日進市第1米野木町北山

日進市第1米野木町北山(愛知県日進市の一戸建て・建売・分譲)

価格 3,600万円

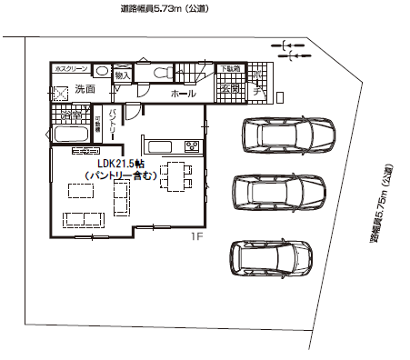
区画図・間取り

周辺地図


物件概要

価格
3,600万円
所在地
愛知県日進市米野木町北山・三本木町廻間1番171・111番38
交通
名鉄豊田 米野木駅 徒歩35分 バス34分
バス線「くるりんバス 名鉄米野木駅行」バス停「 日進ニュータウン」より徒歩2分
建築確認番号
確認サービス第KS126-0420-51356号(令和8年2月5日)
総棟数
1棟
販売棟数
1棟
土地面積
171.08
建物面積
100.44
間取り
4LDK
構造
木造2階建
地目
宅地
用途地域
無指定
建ぺい率
60%
容積率
200%
私道負担
築年月
2026年7月完成予定
土地権利
所有権
道路
東5.75m 北5.73m
設備
中部電力 都市ガス 公営水道 個別浄化槽
制限事項
-
備考
・設計住宅性能評価取得済 ・建設住宅性能評価取得予定
取引形態
売主
情報登録日
2026-04-06
情報更新日
2026-04-10 14:37:44
次回更新予定日
情報更新日より14日以内
お問い合わせ先
ファースト住建株式会社
名古屋支店 052-709-5755
〒465-0093 名古屋市名東区一社2丁目106番地 ピア葵1階
宅地建物取引業 国土交通大臣(6)第6116号 愛知県宅地建物取引業協会会員
注意事項
※照明器具・カーテンレール等は別途注文となります。
※CATVはお客様負担となります。
※消費税・外構工事費込(当社仕様オープン外構)
※図面と現況が異なる場合は現況優先となります。


資料請求フォーム

  • ご入力
  • ご確認
  • 完了

内覧希望   内覧希望日時
物件購入について相談したい
物件についての詳しい資料がほしい
その他

資料請求を行っていただく前にプライバシーポリシー」を必ずお読みください。
定休日(火曜日・水曜日)や夏季休業・年末年始休業などの期間は、返信までにお時間をいただく場合がございます。

check