物件検索

HOME物件検索条件検索結果一宮市第1大赤見

一宮市第1大赤見(愛知県一宮市の一戸建て・建売・分譲)

価格 2,690万円

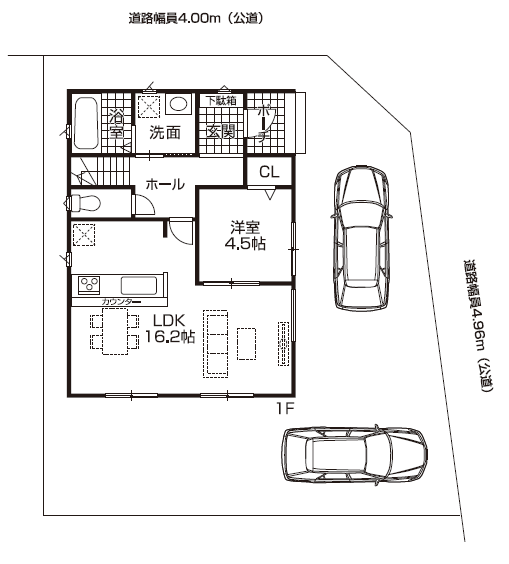
区画図・間取り

周辺地図


物件概要

価格
2,690万円
所在地
愛知県一宮市大赤見字若年東18番7・11
交通
JR東海道本線 一宮駅 徒歩35分 バス18分
バス線「名鉄バス「一宮駅」行」バス停「若年」より徒歩3分
建築確認番号
第R07確認建築愛建住セ24841号(令和8年2月9日)
総棟数
1棟
販売棟数
1棟
土地面積
136.06
建物面積
98.83
間取り
4LDK
構造
木造2階建
地目
宅地
用途地域
無指定
建ぺい率
60%
容積率
200%
私道負担
築年月
2026年6月更地
土地権利
所有権
道路
※区画図に記載
設備
中部電力、東邦ガス、公営水道、個別浄化槽
制限事項
-
備考
北東角地! 駐車2台!
取引形態
売主
情報登録日
2026-02-15
情報更新日
2026-02-23 15:42:59
次回更新予定日
情報更新日より14日以内
お問い合わせ先
ファースト住建株式会社
名古屋西支店 052-528-3825
〒451-0012 愛知県名古屋市西区稲生町4丁目29 マジェール稲生1階
宅地建物取引業 国土交通大臣(6)第6116号 愛知県宅地建物取引業協会会員
注意事項
※照明器具・カーテンレール等は別途注文となります。
※CATVはお客様負担となります。
※消費税・外構工事費込(当社仕様オープン外構)
※図面と現況が異なる場合は現況優先となります。


資料請求フォーム

  • ご入力
  • ご確認
  • 完了

内覧希望   内覧希望日時
物件購入について相談したい
物件についての詳しい資料がほしい
その他

資料請求を行っていただく前にプライバシーポリシー」を必ずお読みください。
定休日(火曜日・水曜日)や夏季休業・年末年始休業などの期間は、返信までにお時間をいただく場合がございます。

check