物件検索

HOME物件検索条件検索結果名古屋市第3港区福田

名古屋市第3港区福田(愛知県名古屋市港区の一戸建て・建売・分譲)

価格 3,499万円

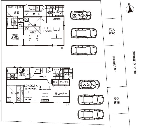
区画図・間取り

周辺地図


物件概要

価格
3,499万円
所在地
愛知県名古屋市港区福田1丁目110番5、110番6
交通
近鉄名古屋線 伏屋駅 徒歩37分
バス線「市バス地下鉄八田駅行」バス停「正江橋」より徒歩2分
建築確認番号
第R07確認建築愛建住セ24910号(令和8年2月26日)第R07確認建築愛建住セ24911号(令和8年2月26日)
総棟数
2棟
販売棟数
2棟
土地面積
153.15
建物面積
100.44㎡ ~102.06
間取り
4LDK
構造
木造2階建
地目
宅地
用途地域
第二種住居地域
建ぺい率
60%
容積率
200%
私道負担
築年月
2026年6月更地
土地権利
所有権
道路
※区画図に記載
設備
中部電力・東邦ガス・公営上水・公共下水
制限事項
-
備考
住宅性能評価取得予定 1号地:1階に洋室有・洗面にホスクリーン有 2号地:3LDK+畳コーナー
取引形態
売主
情報登録日
2026-03-22
情報更新日
2026-04-10 14:31:50
次回更新予定日
情報更新日より14日以内
お問い合わせ先
ファースト住建株式会社
東海支社3課 0568-86-3144
〒486-0927 愛知県春日井市柏井町3丁目25番 ラ・プリミエール101号
宅地建物取引業 国土交通大臣(6)第6116号 愛知県宅地建物取引業協会会員
注意事項
※照明器具・カーテンレール等は別途注文となります。
※CATVはお客様負担となります。
※消費税・外構工事費込(当社仕様オープン外構)
※図面と現況が異なる場合は現況優先となります。


資料請求フォーム

  • ご入力
  • ご確認
  • 完了

内覧希望   内覧希望日時
物件購入について相談したい
物件についての詳しい資料がほしい
その他

資料請求を行っていただく前にプライバシーポリシー」を必ずお読みください。
定休日(火曜日・水曜日)や夏季休業・年末年始休業などの期間は、返信までにお時間をいただく場合がございます。

check